613-762-8408 ops@newdoorottawa.ca


LOADING

1058 Shearer Drive Brockville, Ontario K6V 7K1

3 Bedroom 2 Bathroom 1500 - 2000 sqft
Bungalow Fireplace Central Air Conditioning Forced Air

$899,500

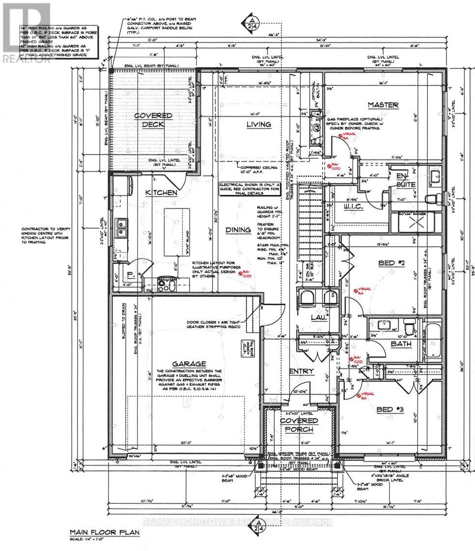
Introducing The Ridgeview - Elegant, efficient, and beautifully livable, The Ridgeview, brings a refined new take on a proven favourite. Crafted by a trusted local builder, this 1,640 sq. ft. bungalow showcases subtle design updates and elevated finishes throughout all on a premium walkout lot in the desirable Bridlewood community. From the moment you arrive, the home's inviting architecture and covered entry create an immediate sense of welcome. Inside, an airy open-concept layout connects the kitchen, dining, and great room spaces that is ideal for gatherings or quiet evenings alike. Generous windows flood the home with natural light, while a covered rear terrace provides the perfect setting to unwind and enjoy the outdoors in privacy and comfort. Three spacious bedrooms are smartly arranged for function and flow. The primary suite offers a calm retreat with a large walk-in closet and a spa-inspired ensuite. As always, attention to detail and thoughtful craftsmanship define this builders work from the 9-foot ceilings and quartz kitchen surfaces to the energy-efficient casement windows and comfort-insulated basement floor. An impressive full 9-foot walkout lower level adds tremendous versatility easily finished for extra living space, a home gym, or guest suite and enhances both the lifestyle value and future return on investment. High-efficiency gas heating, central air conditioning, on-demand hot water, and quality finishes throughout complete this exceptional new build. The Ridgeview's timeless design, reimagined for todays living. (id:29090)

Property Details

MLS® Number X12457220
Property Type Single Family
Community Name 810 - Brockville
Parking Space Total 4

Building

Bathroom Total 2
Bedrooms Above Ground 3
Bedrooms Total 3
Amenities Fireplace(s)
Appliances Water Heater
Architectural Style Bungalow
Basement Development Unfinished
Basement Features Walk Out
Basement Type N/a (unfinished), N/a
Construction Style Attachment Detached
Cooling Type Central Air Conditioning
Fireplace Present Yes
Foundation Type Poured Concrete
Heating Fuel Natural Gas
Heating Type Forced Air
Stories Total 1
Size Interior 1500 - 2000 Sqft
Type House
Utility Water Municipal Water

Parking

Attached Garage
Garage

Land

Acreage No
Sewer Sanitary Sewer
Size Depth 100 Ft
Size Frontage 60 Ft
Size Irregular 60 X 100 Ft
Size Total Text 60 X 100 Ft
Zoning Description R

Rooms

Level Type Dimensions
Main Level Living Room 5.12 m x 4.33 m
Main Level Dining Room 4.02 m x 4.87 m
Main Level Kitchen 3.6 m x 4.87 m
Main Level Primary Bedroom 4.9 m x 3.61 m
Main Level Bedroom 4.24 m x 3.35 m
Main Level Bedroom 4.29 m x 3.04 m

https://www.realtor.ca/real-estate/28978330/1058-shearer-drive-brockville-810-brockville

Your Favourites

 

No Favourites Found