4 Bedroom
2 Bathroom
1500 - 2000 sqft
Raised Bungalow
Heat Pump
$500,000
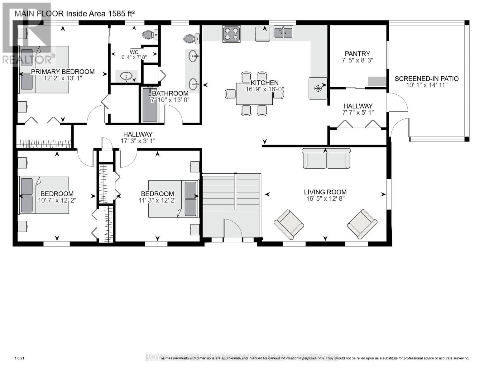
Experience the perfect blend of village charm and serene privacy in this bright, spacious 3+1 bedroom raised bungalow, situated on a quiet dead-end street. The heart of the home is a newly updated eat-in kitchen, offering ample space for a custom island or a large harvest table-perfect for family gatherings. The side porch entry opens to a functional foyer with an ample sized coat closet and a walk in pantry with the freezer included. The main floor features three bedrooms, including a primary suite with an updated 2-piece ensuite (with potential to add a shower), an updated full bathroom, and a comfortable living room. You'll also love the modern touches, including a newer central vacuum, new heat pump and furnace and a handy laundry chute accessible from both main-floor bathrooms. On the lower level there is a 4th bedroom, a dedicated storage room, the utility/laundry room(with room to add a 3rd bathroom) and a family room ready for your kids to enjoy! Set on a picturesque 1-acre lot with a private stream and no rear neighbours, this home is a tranquil retreat. With a quick closing available, you could be hosting backyard BBQ's before summer even begins! (id:29090)
Property Details
|
MLS® Number
|
X13034120 |
|
Property Type
|
Single Family |
|
Community Name
|
809 - Augusta Twp |
|
Community Features
|
School Bus, Community Centre |
|
Features
|
Cul-de-sac, Irregular Lot Size, Carpet Free |
|
Parking Space Total
|
6 |
Building
|
Bathroom Total
|
2 |
|
Bedrooms Above Ground
|
3 |
|
Bedrooms Below Ground
|
1 |
|
Bedrooms Total
|
4 |
|
Age
|
16 To 30 Years |
|
Appliances
|
Water Heater, Water Treatment, Water Softener, Central Vacuum, Dryer, Freezer, Microwave, Stove, Washer, Refrigerator |
|
Architectural Style
|
Raised Bungalow |
|
Basement Development
|
Partially Finished |
|
Basement Type
|
Full (partially Finished) |
|
Construction Style Attachment
|
Detached |
|
Exterior Finish
|
Vinyl Siding |
|
Foundation Type
|
Block |
|
Half Bath Total
|
1 |
|
Heating Fuel
|
Electric |
|
Heating Type
|
Heat Pump |
|
Stories Total
|
1 |
|
Size Interior
|
1500 - 2000 Sqft |
|
Type
|
House |
|
Utility Water
|
Drilled Well |
Parking
Land
|
Acreage
|
No |
|
Sewer
|
Septic System |
|
Size Depth
|
354 Ft ,2 In |
|
Size Frontage
|
125 Ft ,3 In |
|
Size Irregular
|
125.3 X 354.2 Ft |
|
Size Total Text
|
125.3 X 354.2 Ft |
Rooms
| Level |
Type |
Length |
Width |
Dimensions |
|
Lower Level |
Bedroom 4 |
4.5 m |
3.19 m |
4.5 m x 3.19 m |
|
Lower Level |
Other |
4.52 m |
2.6 m |
4.52 m x 2.6 m |
|
Lower Level |
Other |
2.77 m |
1.97 m |
2.77 m x 1.97 m |
|
Lower Level |
Family Room |
9.17 m |
5.19 m |
9.17 m x 5.19 m |
|
Lower Level |
Utility Room |
9.84 m |
4.1 m |
9.84 m x 4.1 m |
|
Main Level |
Kitchen |
5.12 m |
4.89 m |
5.12 m x 4.89 m |
|
Main Level |
Pantry |
2.52 m |
2.27 m |
2.52 m x 2.27 m |
|
Main Level |
Foyer |
2.31 m |
1.55 m |
2.31 m x 1.55 m |
|
Main Level |
Living Room |
4.99 m |
3.85 m |
4.99 m x 3.85 m |
|
Main Level |
Primary Bedroom |
3.99 m |
3.7 m |
3.99 m x 3.7 m |
|
Main Level |
Bathroom |
2.34 m |
1.93 m |
2.34 m x 1.93 m |
|
Main Level |
Bathroom |
3.97 m |
2.4 m |
3.97 m x 2.4 m |
|
Main Level |
Bedroom 2 |
3.71 m |
3.44 m |
3.71 m x 3.44 m |
|
Main Level |
Bedroom 3 |
3.71 m |
3.22 m |
3.71 m x 3.22 m |
Utilities
|
Electricity
|
Installed |
|
Wireless
|
Available |
https://www.realtor.ca/real-estate/29645403/8100-amelia-street-augusta-809-augusta-twp